Alpolic composite panels are lightweight, rigid and super flat, allowing easy fabrication for both exterior and interior applications. Alpolic ACM consists of a non-combustable mineral filled core between two aluminium sheets with a fluorocarbon paint coating, available in a range of colours and finishes.
Stratco APS Product Range
Stratco APS is proud to supply, fabricate & install most brands of Aluminium Panel, providing a total solution for all your Aluminium Panel System needs. Our major aluminium panel suppliers are:
Alucobond® Plus
With a diverse range of colours and finishes, Alucobond® features PVDF coating systems that combine superior formability and surface performance. Used in New Zealand since 1985, Alucobond is the most popular choice for interior and exterior applications in residential and commercial construction.
Alucodual®
Indurabond
Indurabond, Paneltec's highly versatile Aluminium Composite Panel (ACP), is renowned for its exceptional durability and extreme weather resistance, making it an ideal choice for various applications including façades, fascia, soffits, awnings, and more, such as standing seam cladding and balustrades
Induracore G2
Induracore G2, ALP (aluminium laminated panel) cladding, features three layers of aluminum, offering a lightweight solution suitable for a wide range of buildings, from upscale residences to high-rise structures. With the most extensive color range and stock in New Zealand, it's the ideal choice for architectural projects.
Alucolux Solid A1
3A Composites introduces Alucolux Solid Aluminum, expanding their high-performance cladding solutions. Alucolux, a 3mm solid coil-coated aluminum sheet, suits both exterior cladding and interior linings, featuring matching colors with Alucobond Plus and embossed surfaces for Wood Look and Stone Look options.
PaneLux®
PaneLux® Solid Aluminium Panels are crafted at a thickness of 3mm, presenting a selection of 5 stocked colors alongside an additional array of 26 solid and metallic options for tailored project customization. Furthermore, custom color matching upon request to meet your specific needs.
Aluminium Panel Systems (APS)
Aluminium Panel Systems are high quality, lightweight cladding systems that include ACP (Aluminium Composite Panel), Aluminium Laminated Panel and Solid Aluminium Panel that offer versatility and style, broadening the design options available to builders designers and architects. Stratco Aluminium Panel Systems are easy to install, extremely durable and low maintenance making them a cost effective architectural solution.
ACP (Aluminium Composite Panel)
ACP consists of two 0.5mm Aluminium Skins that sit outside a fire rated Mineral Core, producing a perfectly flat and smooth sheet material with highly versatile characteristics. ACP is suitable for both internal and external cladding applications. ACP delivers the rigidity and robustness of heavier sheet metal in a lightweight material that is easily machined and produced in a cost effective manner.
Aluminium Laminated Panel
Aluminium Laminated Panel appears exactly the same as our traditional composite aluminium panels (ACP). However, the advanced technology of Aluminium Laminated Panel is that it is constructed from a completely aluminium-stamped structure, rather than combustible materials. With no composite materials present, it is designed for durability, weatherability and fire resistance and is extensively tested to meet all requirements of the New Zealand building code. Aluminium Laminated Panel is an excellent choice for external wall claddings on commercial, industrial and high-rise buildings, as well as internal linings.
Solid Aluminium Panel
Solid Aluminium Panel is a 100% non-combustible cladding solution for compliance and safety with no complications. Deemed non-combustible and certified to AS1530.1. Solid Aluminium Panel is a durable, high impact resistant panel that provides solutions for architects, designers, developers, builders and construction companies looking for a premium solid aluminium façade panel they can safely specify for commercial, educational, aged care and residential projects without compromising design.
Why Stratco APS?
Stratco is one of the largest manufacturers of quality building and home improvement products across New Zealand and Australia. With over 70 years experience in manufacturing and engineering, Stratco is committed to innovation that meets customer needs with high standards, superior design and practical value. Stratco APS provides a one stop solution for all your Aluminium Panel System needs throughout New Zealand, combining highly skilled installers with precision CNC machining and CAD technology that delivers a millimetre accurate product.
Our certified APS systems have been tested for strength, durability and weather-tightness by IANZ qualified engineers to ensure compliance across all New Zealand and International Standards (AS/NZS, E2/VM1 and AS/NZS 4284:2008).
Commercial cladding with Aluminium Panel Systems (APS) allows for bold design options with a highly durable and weather resistant material, making it a popular choice with architects and builders. Commercial buildings typically use APS for external facades, wall cladding, flat panels, column/counter cladding and ceiling tiles where a high quality, certified APS system is required.
With over 70 years in business, Stratco has built strong relationships with customers and suppliers where we are trusted to deliver effective solutions on time and on budget. All Aluminium Panel Systems comply with New Zealand and International Standards and we deliver fully comprehensive Testing Documentation, Shop Drawings and Producer Statements of Design.

Benefits of Aluminium Panel Systems for Commercial Applications:
- Lightweight – Average panel weight is 5.5kg/m2.
- Easy to work with – APS can be easily cut, folded, rolled, drilled or punched.
- Durable– Surface coatings are guaranteed for over 10 years.
- Low Maintenance – APS is cleaned by the rain and easy to maintain.
- Versatile – Can be routed, folded and fabricated into a wide range of architectural shapes and features.
- High Performance Material – Tested to meet the weatherproofing and structural requirements of the New Zealand market.
Commercial APS Projects
APS offers a unique solution for architects and builders with its limitless design possibilities and ease of fabrication and installation. Available in a broad range of colours and finish options, APS is aesthetically pleasing, but is also highly durable, weather and fire resistant.
APS is often used on residential buildings as architectural cladding for both interior and exterior walls. APS provides a highly effective barrier between the residence and the external environment.
Benefits of Aluminium Panel Systems for Residential Applications:
- Lightweight – Average panel weight is 5.5kg/m2.
- Easy to work with – APS can be easily cut, folded, rolled, drilled or punched.
- Durable– Surface coatings are guaranteed for over 10 years.
- Low Maintenance – APS is cleaned by the rain and easy to maintain.
- Versatile – Can be routed, folded and fabricated into a wide range of architectural shapes and features.
- High Performance Material – Tested to meet the weatherproofing and structural requirements of the New Zealand market.
Residential APS Projects
Standard Joint & Fixing

Sealed Joint System

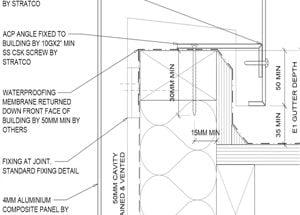
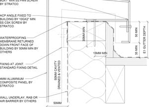
Parapet Membrane Gutter

Base Detail to Ground

External Corner

Internal Corner

Soffit - ACP Drop Edge & Soffit

Soffit - ACP to Fibre Cement

Residential Window Head

Residential Window Jamb

Residential Window Sill

Commercial Window Head

Commercial Window Jamb

Commercial Window Sill

Standard Joint Concrete Fixing

Stiffener Fixing

Large Extrusion Window Head

Large Extrusion Window Jamb

Large Extrusion Window Sill

Large Extrusion Window Head - Alternative

Penetration - Gutter Overflow

Penetration - Pipes

Penetration - Sign - Louvre - Downpipe Support

Penetration - Soffit Lighting - Downpipe

Base Detail to Membrane

ACP Above Flashing

Soffit - ACP to Window Head

ACP Saddle Flashing

ACP to Flashing - Jamb

There are no products to display.
